Description
- Spacious four bedroom house
- Wide corner plot with potential to extend
- Well proportioned reception rooms
- Gas fire heating
- Double glazed windows
- Single garage
- Quiet cul-de-sac
- Beautiful gardens enjoying south and west aspects
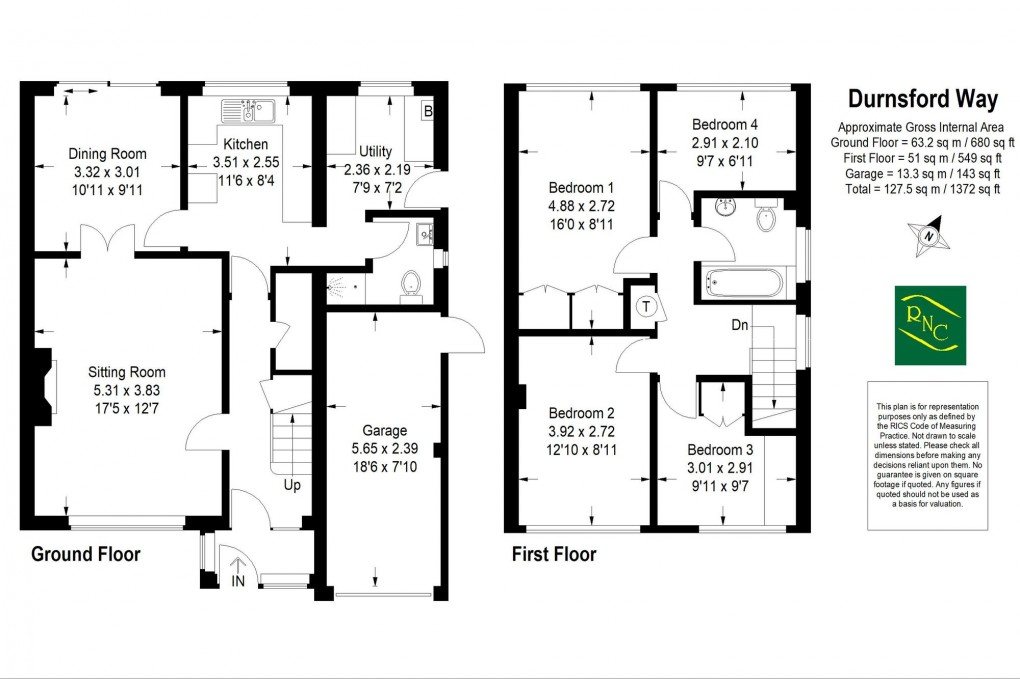
A beautifully presented four bedroom detached family home situated at the end of a quiet cul-de-sac on a superb wide garden plot backing onto an open field. The property has a modern entrance porch leading into a welcoming entrance hall opening into a spacious bright and airy sitting room with fireplace, double doors into the dining room with patio doors to garden with lovely westerly aspects over the garden and the field beyond. There is a fitted kitchen with useful utility room off and a cloakroom/shower room completing the ground floor. On the first floor there are four good size bedrooms, with two of the bedrooms having built-in cupboards and family bathroom completes the accommodation. Outside the property is approached via a good size driveway extending to the front and side of the property leading to a single garage. The gardens are a true delight and a super feature of the property extending to the side and rear with large expanses of lawn interspersed by established shrub and flower borders. There is a large paved patio to the rear providing a lovely seating area that you can follow the sun round from the south to the evening westerly sunsets. The large amount of space on the side of the property provides huge scope to extend the property, subject to the usual planning consents. We highly recommend a visit to fully appreciate the property's location and potential.
Floorplan
