Description
- 4 further bedrooms
- 10 Year NHBC Warranty
- Double height windows and vaulted ceilings in many rooms
- Stunning architecturally unique new homes
- Principal suite with dressing room and en-suite
- Views over Knowle Country Park and a short stroll from Cranleigh High Street
- Contemporary styling inside and out
- Ready to move in
- Open plan kitchen/breakfast/family room with wood burning stove
A contemporary and stylish new home with views across the magnificent Knowle Country Park in Cranleigh, ready to move into and featuring an attractive landscaped garden. Book an exclusive viewing now and find out how we can help to make your new house purchase a reality.
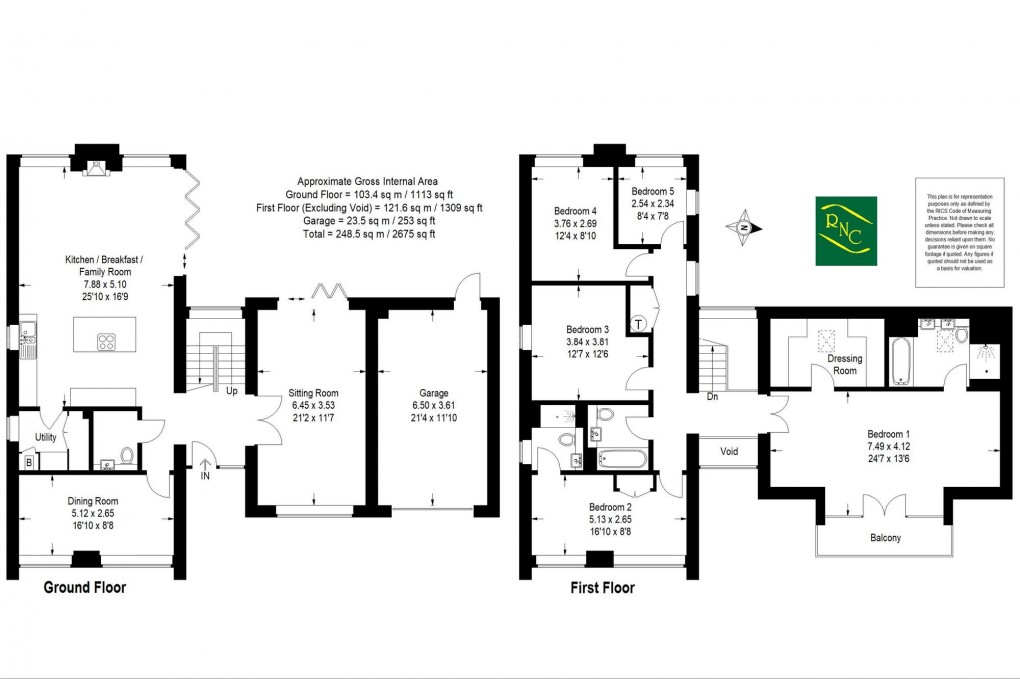
Set in the prestigious Country Park Collection by Fabrica this property has a wonderful feeling of natural light from the extensive glazing and the vaulted ceilings in certain rooms add additional interest and drama to this striking property. The property features a 25ft open plan kitchen/breakfast/family room with part vaulted ceilings and a wood burning stove. The quality fitted kitchen includes quartz work surfaces, an island unit with breakfast bar and Siemens appliances. There is a further dual aspect sitting room and separate dining room of generous proportions and a utility room and cloakroom complete the ground floor. The stunning open tread staircase adds excitement to the entrance hall and leads to the first floor where the 24ft principal bedroom suite has a balcony overlooking the Country Park and features a generous en-suite and fully fitted dressing room. The guest suite also has incredible views over the park from the full height windows and a stylish en-suite. Two further double bedrooms and a single bedroom have use of a beautifully appointed family bathroom. Outside there is a garage, driveway parking for two cars and a good sized landscaped garden with well stocked shaped borders. We highly recommend arranging a viewing of this unique and stylish family home.
Floorplan
